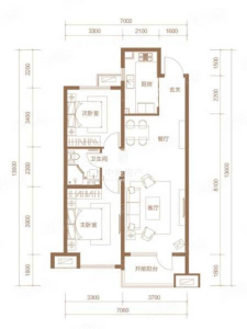
万达维多利亚湾(31-67号楼) 2室2厅1卫 南北 精装
房源编号:P061466  2025-11-19发布
虚假举报
47
单价5452元/㎡
关注

2 2

精装

86.2

面积

高层 南北

共34层

家电齐全 视频房 VR房
类型 住宅
建成 -
片区黄岛安子
产权 商品房(70年)
地址黄岛开发区西海岸新区同江路1号地图周边
张静
张静
16678510327

楼盘详情

楼盘:
万达维多利亚湾(31-67号楼)
开 发 商:
青岛万达游艇产业投资有限公司
车位:
22629
停车费:
200.00元/月
供暖类型:
-
用水类型:
-
用电类型:
-
燃气费用:
-

配套

  • 家电齐全

房间描述万达维多利亚湾(31-67号楼) 住宅 86.21m² 南北 2室2厅1卫
交通配套乘坐公交黄岛19路、802路、2路A线等车在大洼站下车,沿连江路直行300米左拐,直行300米到达项目。 2、万达·维多利亚湾开通万达·维多利亚湾——新街口一线、万达·维多利亚湾——南京路展示中心二线。维湾专线一路沿路站点:新街口——卓亭广场——青职学

VR看房全屏播放