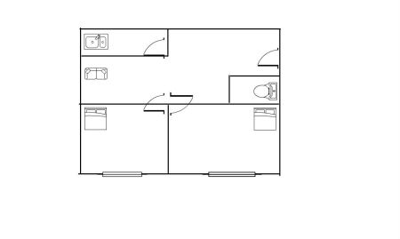
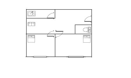
柳沟小区 2室1厅1卫 南北 简装
房源编号:P182587  2025-09-22发布
虚假举报
65
单价7558元/㎡
关注

2 1

简装

86

面积

高层 南北

共7层

满五年 VR房 视频房 独家委托 唯一住房
类型 住宅
建成 1994年
片区黄岛
产权 商品房(70年)
地址崇明岛路100号地图周边
学位 青岛经济技术开区发实验小学黄岛区第三中学
杨洋
杨洋
15192038806

楼盘详情

楼盘:
柳沟小区
开 发 商:
青岛市政建设有限公司
车位:
-
停车费:
0.00元/月
供暖类型:
集中供暖
用水类型:
民水
用电类型:
民电
燃气费用:
3.5元/m³/月

配套

  • 无家电

房间描述柳沟小区 住宅 86.0m² 南北 2室1厅1卫
交通配套1路,18路,801路,817路,12路,10路,24路等

VR看房全屏播放

近期带看了解更多房源信息,您也可以联系以下经纪人

近七天共带看0次(总带看1次)
宋利
宋利(13964259790)
本房源共带看1次;2025-09-29带看
综合评分:(5.0)
服务评价: