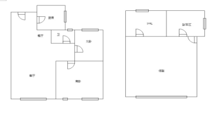
莱茵小镇 3室2厅2卫南北 中装
房源编号:P063681  2025-04-06发布
虚假举报
116
单价10630元/㎡
关注

3 2

中装

109.1

复式

高层 南北

共30层

满五年 VR房 视频房
类型 住宅
建成 2014年
片区黄岛保税区
产权 商品房(70年)
地址青岛市开发区齐长城路20号地图周边
学位 双语小学西校区奋进路中学
张先传
张先传
13184131156

楼盘详情

楼盘:
莱茵小镇
开 发 商:
青岛齐盛达置业有限公司
车位:
500
停车费:
220.00元/月
供暖类型:
集中供暖
用水类型:
民水
用电类型:
民电
燃气费用:
2.9元/m³/月

配套

  • 燃气

  • 洗衣机

房间描述此房位于小区中间位置,小区坐落在花园路主干道上,周边生活设施完善,衣食住行方便出行,小区门口及周边有5、9、10、19、23、24、19、59等多路公交车经过;多家娱乐会所;大型购物商场……
交通配套9路 西海岸汽车东站-龙湖原山 25路 陈家庄-西海岸汽车东站 26路 龙泉王家-薛家岛办事处 31路 昆仑山庄北门-薛家岛枢纽站 55路 维多利亚湾东-福瀛装饰城 6路 海上嘉年华东-柳花泊西
楼盘配套
小区西侧就是小吃一条街,各色美食满足您的味蕾,距离麦德龙十分钟路程,小区为周边小区中房龄最新小区,生活方便。

VR看房全屏播放