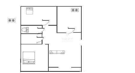
江山花园 2室2厅1卫东 精装
房源编号:P109929  2024-05-03发布
虚假举报
82
单价8557元/㎡
关注

2 2

精装

95.8

面积

中层 东

共7层

满五年 视频房
类型 住宅
建成 -
片区黄岛辛安
产权 -
地址江山北路300号地图周边
谢繁亚
谢繁亚
15192707496

楼盘详情

楼盘:
江山花园
开 发 商:
-
车位:
-
停车费:
-
供暖类型:
-
用水类型:
-
用电类型:
-
燃气费用:
-
房间描述此房位于小区中间位置,小区坐落在花园路主干道上,周边生活设施完善,衣食住行方便出行,小区门口及周边有5、9、10、19、23、24、19、59等多路公交车经过;多家娱乐会所;大型购物商场……