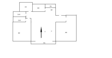
辛安府 3室2厅2卫 南北 精装
房源编号:P103213  2024-01-04发布
虚假举报
135
单价11441元/㎡
关注

3 2

精装

118

面积

中层 南北

共17层

VR房 视频房
类型 住宅
建成 2021年
片区黄岛辛安
产权 -
地址山东省青岛市黄岛区团结路1505号地图周边
姜巧荣
姜巧荣
15154447781

楼盘详情

楼盘:
辛安府
开 发 商:
青岛西海岸文化旅游集团有限公司
车位:
1311
停车费:
-
供暖类型:
-
用水类型:
-
用电类型:
-
燃气费用:
-

配套

  • 冰箱

  • 空调

  • 煤气/天然气

  • 全套

  • 洗衣机

房间描述辛安府 住宅 118.0㎡ 南北 3室2厅2卫
交通配套地铁:中铁四局城轨分公司(青岛地铁6号线项目部) 公交车:东12路、东11路、黄岛25、黄岛26、黄岛10路

VR看房全屏播放