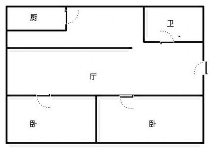
前湾小区 2室1厅1卫 南北 精装
房源编号:P016570  2025-11-19发布
虚假举报
950元/月
单价15元/㎡/月
关注

2 1

精装

64.5

面积

高层 南北

共5层

南北通透 沿河景观 满五年 视频房
类型 住宅
建成 2000年
片区黄岛
产权 商品房(70年)
地址刘公岛路122号地图周边
学位 青岛开发区崇明岛路小学青岛经济技术开发区第二中学
柴海燕
柴海燕
15954268726

楼盘详情

楼盘:
前湾小区
开 发 商:
第五城市开发商
车位:
-
停车费:
-
供暖类型:
集中供暖
用水类型:
民水
用电类型:
民电
燃气费用:
-

配套

  • 空调

  • 煤气/天然气

  • 热水器

房间描述前湾小区 住宅 64.45m² 南北 2室1厅1卫
交通配套1路,18路,801路,5路,10路,24路等交通