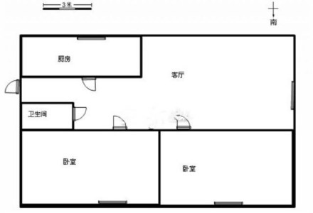
体育场小区 2室1厅1卫 南 精装
房源编号:P102850  2025-11-07发布
虚假举报
1200元/月
单价16元/㎡/月
关注

2 1

精装

75

面积

中层 南

共6层

类型 住宅
建成 -
片区黄岛
产权 -
地址澎湖岛街125号地图周边
李小艳
李小艳
18562762536

楼盘详情

楼盘:
体育场小区
开 发 商:
-
车位:
-
停车费:
-
供暖类型:
-
用水类型:
-
用电类型:
-
燃气费用:
-

配套

  • 全套

房间描述体育场小区 住宅 75.0m² 南 2室1厅1卫
交通配套1路,18路,5路,801路,24路