盐滩小区 2室1厅1卫 南 精装
房源编号:P104771  2025-09-25发布
虚假举报
1000元/月
单价13元/㎡/月
关注

2 1

精装

77

面积

中层 南

共5层

视频房
类型 住宅
建成 1996年
片区黄岛
产权 -
地址青岛市黄岛区崇明岛东路78号地图周边
学位 青岛开发区崇明岛路小学青岛经济技术开发区第二中学
杨洋
杨洋
15192038806

楼盘详情

楼盘:
盐滩小区
开 发 商:
第五城市开发商
车位:
-
停车费:
0.00元/月
供暖类型:
-
用水类型:
-
用电类型:
-
燃气费用:
-

配套

  • 煤气/天然气

  • 热水器

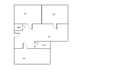
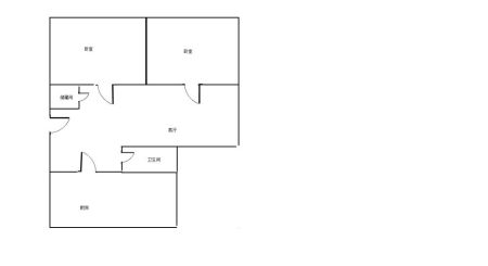
房间描述盐滩小区 住宅 77.0m² 南 2室1厅1卫
交通配套1路、18路、12路、817路等公交线路