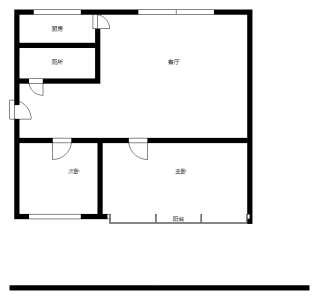
黄岛国货 2室1厅1卫 南北 简装
房源编号:P131782  2025-11-06发布
虚假举报
1000元/月
单价16元/㎡/月
关注

2 1

简装

63

面积

高层 南北

共6层

视频房 满五年
类型 住宅
建成 -
片区黄岛
产权 -
地址[黄岛-黄岛]长兴岛街10号地图周边
李艳香
李艳香
13953228429

楼盘详情

楼盘:
黄岛国货
开 发 商:
-
车位:
-
停车费:
-
供暖类型:
-
用水类型:
-
用电类型:
-
燃气费用:
-

配套

  • 全套

  • 热水器

  • 煤气/天然气

  • 冰箱

  • 空调

  • 洗衣机

房间描述黄岛国货 住宅 63.0㎡ 南北 2室1厅1卫
交通配套1路,18路,12路,10路,24路,5路,801路