万达维多利亚湾(31-67号楼) 2室1厅1卫 南北 毛坯
房源编号:P059790  2025-02-21发布
虚假举报
1100元/月
单价13元/㎡/月
关注

2 1

毛坯

87

面积

中层 南北

共34层

类型 住宅
建成 -
片区黄岛安子
产权 商品房(70年)
地址黄岛开发区西海岸新区同江路1号地图周边
蒋秀娟
蒋秀娟
13061240184

楼盘详情

楼盘:
万达维多利亚湾(31-67号楼)
开 发 商:
青岛万达游艇产业投资有限公司
车位:
22629
停车费:
200.00元/月
供暖类型:
-
用水类型:
-
用电类型:
-
燃气费用:
-

配套

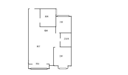
房间描述万达维多利亚湾(31-67号楼) 住宅 87.01㎡ 南北 2室1厅1卫
交通配套乘坐公交黄岛19路、802路、2路A线等车在大洼站下车,沿连江路直行300米左拐,直行300米到达项目。 2、万达·维多利亚湾开通万达·维多利亚湾——新街口一线、万达·维多利亚湾——南京路展示中心二线。维湾专线一路沿路站点:新街口——卓亭广场——青职学