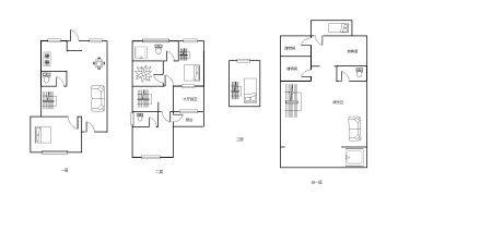
龙湖原山别墅 独栋3室3厅4卫 南 豪装
房源编号:P174453  2025-11-03发布
虚假举报
520
单价23792元/㎡
关注

33

豪装

218.6

面积

-

共1层

满五年 VR房 视频房
类型 别墅
建成 -
片区黄岛辛安
产权 商品房
地址前湾港路地图周边
李振宇
李振宇
15554799220

楼盘详情

楼盘:
龙湖原山别墅
开 发 商:
-
车位:
-
停车费:
-
供暖类型:
-
用水类型:
-
用电类型:
-
燃气费用:
-

配套

  • 家电齐全

房间描述龙湖原山别墅 别墅 218.56㎡ 南 独栋3室3厅4卫

VR看房全屏播放