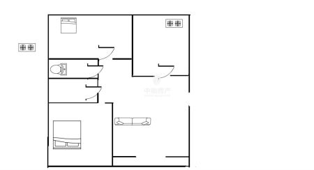
江山花园 2室1厅1卫 南 简装
房源编号:P128786  2025-11-01发布
虚假举报
55
单价6022元/㎡
关注

2 1

简装

91.3

面积

高层 南

共7层

满五年 VR房 视频房
类型 住宅
建成 -
片区黄岛辛安
产权 -
地址江山北路300号地图周边
马肖华
马肖华
18905425833

楼盘详情

楼盘:
江山花园
开 发 商:
-
车位:
-
停车费:
-
供暖类型:
-
用水类型:
-
用电类型:
-
燃气费用:
-

配套

  • 部分家电

房间描述江山花园 住宅 91.33m² 南 2室1厅1卫

VR看房全屏播放