首页
新房
二手房
租房
小区
资讯
公司介绍
个人中心
|
注销
登录
操作成功!
扫码登录
已扫码
微信/APP扫码登录
手机登录
邮箱登录
手机号
邮箱
验证码
发送
登录
折扣咨询
带看项目
请选择项目
姓名
请输入姓名
电话
验证码
请输入验证码
发送验证码
您的专属客服会在24小时内联系您!
立即报名
推荐
客户
盘源
客户姓名
请填写姓名
联系电话
栋/层/房
请填写地址
意向楼盘
请填写楼盘
经纪顾问
有
无
请填写业务员
备注
我的信息
我的姓名
请填写姓名
我的电话
验证码
请输入验证码
获取短信验证码
保存
投诉建议
类型:
请选择类型
内容:
请填写您的建议
提交
折扣咨询
请输入姓名
男
女
发送验证码
请输入验证码
您的专属客服会在24小时内联系您!
立即报名
关闭
大麦好房
青岛
搜索
青岛
胶南市
隐珠
奥润澜庭
奥润澜庭联排 5室2厅3卫南北 精装
房源编号:P083085 2023-11-06发布
虚假举报
扫码举报虚假房源
视频
图片
10000
元/月
单价
40
元/㎡/月
关注
5
室
2
厅
精装
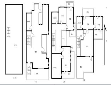
252.1
㎡
面积
-
共1层
类型
别墅
建成
-
楼盘
奥润澜庭
更多 >
片区
胶南市隐珠
产权
-
地址
黄岛滨海大道2703号
…
地图周边
党艳青
15006481111
在线微聊
楼盘详情
楼盘:
奥润澜庭
开 发 商:
-
车位:
-
停车费:
-
供暖类型:
-
用水类型:
-
用电类型:
-
燃气费用:
-
房间描述
此房格局很宽敞,采光通风俱佳;超舒适的联排别墅 ,朝向南北,带错层的厅,房型正气,全明户型;小区周边设施成熟,有大型卖场;出门对面就是公交总站台,交通便利;距开通的地铁站只需5分钟路程,升值前景不错;房东着急出售,房东心态很稳,您无需担心房东跳价问题!
带看反馈
地图周边
交通
学校
医疗
金融
购物